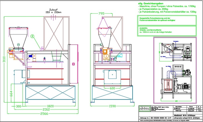
WN 5-200sps
-
Typ: W.N. 5 / 200sps
-
Výkon, volitelné nastavení: max. 30t/h
Popis / funkce:
- Mimořádně kvalitní moření všech běžných osiv
- Obzvlášť vhodné pro moření vlhčením, promýváním a speciální moření snadno i obtížně tekoucího osiva se zvlášť specifickou absorpcí jeho povrchu.
- V automatickém dávkovém provozu probíhá celý pracovní proces od plnění přes moření až po odběr namořeného osiva přes elektropneumatickou dávkovací váhu osiva
- Směšovací válec se speciálními rozváděcími lopatkami
- Jemný postřik kapalinami
- Libovolný počet dávkovacích čerpadel s váhou pro gravimetrické dávkování
- Libovolný počet práškových dávkovačů pro gravimetrické dávkování
- Programovatelná řídicí jednotka
- Vizualizace na dotykovém displeji
- Datová paměť a dokumentace
Přehled rozměrů / velikostí
Zpět na přehled